下一篇
- 浅浅:这个楼盘到底好不好?
- 雪花飘飘:好的呢。
- 零:这个楼盘周边环境设施怎么样?
- 英雄:我去看过,很齐全。
- 牛转乾坤:这个楼盘价格波动大么?
- 日记本:这个楼盘性价比高。
- 回忆:我建议你们去楼盘看看。
- 大头:也可以直接咨询置业管家。
- 吃了么:什么时候大家一起去看看啊。
- 蓝天:上周我已经签合同了。
创新与成长,星河一直在路上-九游会国际
发布时间: 2022-09-19 14:12:46
来源: 运城楼盘网
分类:
先问各位同行伙伴们一个问题:是不是觉得房子越来越难卖了?
相信大多数人会回答,是的。

2022年1-8月份运城市中心城区新房销售备案套数7363套,同比去年1-8月份的12353套,减少了近5000套,减幅约四成。
近两年,越来越多的房企感觉做房地产的难度越来越大了。市场寒冬、疫情、调控等只是表面原因,深层次的逻辑是,时代变了!
过去的房地产市场,房子总量少且产品单一,市场供不应求,大家买房时可选性少且缺乏经验,觉得只要是房子就行。
如今进入总体不缺房的时代之后,一是随着房子供应量的增大,客户买房时选项增多;二是随着信息化程度的提高,客户的购房经验也多了,所以大家对房子的要求是越来越高。
总体来说,客户对房子的期许不再只是一个居住场所,还要有社区配套、生活体验、服务体系等等……,这就要求房企具备多维度的产品打造和运营能力。
靠老一套建房卖房的企业越来越难以生存,只有不断创新升级,迎合市场需求,才是房企的唯一出路。(貌似各行业都是同理)
言归正传。
话说,前天去看了星河新盘晋府六号的样板间。
总体来说,给我最大的感觉,就是星河作为本土top级房企之一,经过十几载的市场磨砺,这家企业真的是在不断创新、不断成长。从户型表现,就能看出星河产品的完善程度越来越高。
目前可以说在产品层面,几乎不会再犯错,而且有些亮点和优势,已经固化在自己的产品体系当中,持续推广到新项目进行沿用。
先来看下样板间实景视频:
九游会国际-j9九游会老哥俱乐部观察,赞20
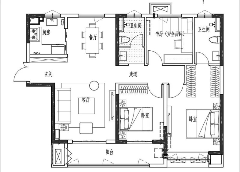
晋府六号本次亮相的样板间,是建面约135m²的三室两厅两卫。
即便是从专业的角度去看,整个户型也几乎没有瑕疵,而且亮点还不少:全明设计,南北通透;三房朝南,约10.5米大面宽;南向约7米超大双联阳台;主卧套房设计;3.1米层高等等。

| 晋府六号建面约135㎡户型图
除了这个样板间户型之外,我也看了113-170㎡整个面积段的其他几个户型,发现上面所说的很多亮点在晋府六号的所有户型中都是标配
比如,3.1米层高、全明设计、三房朝南、超过10米的大面宽、主卧套房设计等等。并且除了113㎡小三居以外,其他户型都配备有超大宽景阳台。
换句话说,晋府六号所有的户型都很nice。
就像豪车很多高端功能都是全系标配一样,晋府六号高标准的产品配置,也反映出整个项目的高品质定位。
上面所说的户型亮点都是些大的方面,接下来给大家再挖点细节,你会更加清楚星河在户型打造上的用心。篇幅有限,只说三点。

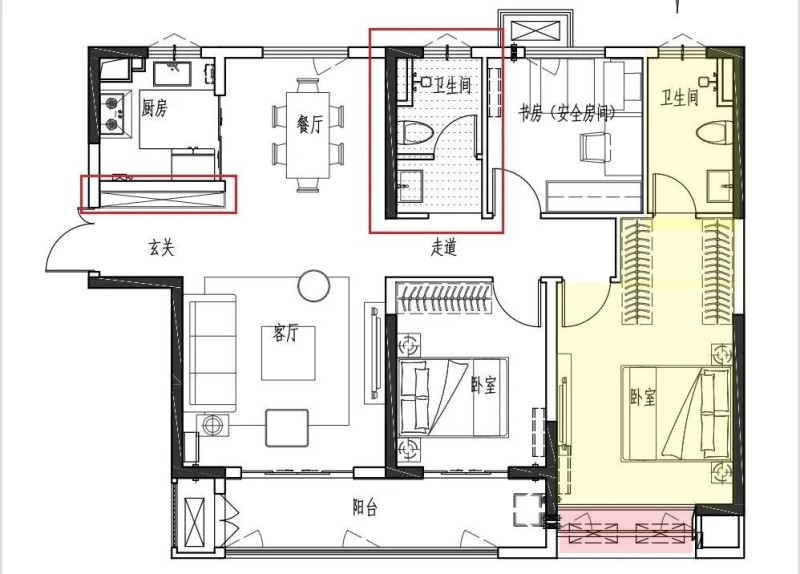
一、子母门 入户玄关
全系标配子母门。子母门好处主要有两点,一是好看阔气;二是搬运大件家具时出入方便。
全系户型在入户玄关这里都预留了很大的空间,来做鞋柜和衣帽柜。通常很多户型都只有一个很小的鞋柜的位置,有的甚至没有地方放鞋柜。这在实际生活中很不方便,尤其是冬季还需要挂一些大件的外套,所以大容量的鞋柜加衣帽柜非常有必要。
这样的入户系统在以往的“晋府系”楼盘当中也非常常见。
二、三段式干湿分区卫生间
这也是全系户型标配,甚至包括所有主卧里的卫生间。看来星河是铁了心摒弃传统的正方形卫生间,那种不仅浪费面积,还功能不分区。
三段式卫生间的设计,不仅利用率高,而且可以做到干湿分区,各功能区使用互不影响。

三、主卧套房设计
“一”字形主卧套房设计,空气更流通,衣帽间的容量也做到了最大化。可以很直观地看到,衣帽间由传统的一个衣柜,变为可放置两个大衣柜,收纳空间大幅提升。
主卧还有个小细节,就是飘窗宽度由60公分增加至80公分,高度降低至40公分,更方便落座,空间感也更强。
通常在项目的规划设计当中,由于地块尺寸、容积率、限高、光照条件等因素的限制,不可能做到所有的户型都十全十美。
但晋府六号整体的户型表现,还是非常可圈可点的,产品瑕疵在不断努力“清零”,亮点和优势也不断地在全系产品中得到完善和放大。这就是星河的成长。
也正是因为不断的创新和成长,星河的产品始终保持着较高的品质水准,并不断去发现和迎合客户的需求,这也是星河旗下各楼盘能够持续热销的主要原因。
即便是在市场不景气的当下,晋府六号自9月7号面市以来,人气爆棚,十天便完成了近200组的认筹,甚至可以预见下个月开盘的场面。

再次回到文章开头的问题,如果你问晋府的销售人员,有没有觉得现在房子越来越难卖了?他们的回答应该正好相反。
所以并不是所有的房子都难卖了,狭路相逢“优”者胜,难卖的只是还不够好的。
ps:除了户型之外,我更期待国庆节晋府六号实景园林的开放,你们呢?
责任编辑: yuncheng02
热门楼盘
查看更多热门楼盘>>团购报名
购房须知|运城购房首付新规定2023!
2运城2023年房价上涨还是下跌?不懂的快来看!
3运城2023首套房利率是多少?运城房子值得买吗
4速看!运城2023年楼市政策的最新消息有哪些?
5运城普通住宅标准2023!在运城买房要注意什么
6运城买房限购吗?运城2023年最新购房政策!
7运城房价2023最新价格表!运城房子值得买吗?
8运城房贷利率最新消息2023年!贷款买房须知!
9运城2023最新限购政策!运城买房要注意什么?
10运城2023年二套房首付比例多少?公积金是一
2023运城哪个区买房最好?全面解析来了!
2023-10-13 15:32:18
运城房价走势最新消息2023,热销楼盘有哪些?
运城房价2023年最新房价多少?有哪些楼盘值得买?
运城买房哪些楼盘更优质?这些运城好房值得关注
8月运城新房哪些楼盘能买?运城热门好房值得关注!
运城外地人买房条件2023新规是什么?不懂快来看!
【西建天茂蓝湾半岛】生态康养·通达形胜·精工细作,只为给您一个花园的家!
北城区配套齐全项目求推荐,选这个楼盘可否?
运城吾悦华府怎么样?宽阔楼间距!住在这样的房子是什么感受?
【运城鸿运天宸】向中心靠近,让生活离我们更近一点
购房须知|运城购房首付新规定2023!
运城2023年房价上涨还是下跌?不懂的快来看!
运城2023首套房利率是多少?运城房子值得买吗?
速看!运城2023年楼市政策的最新消息有哪些?
运城普通住宅标准2023!在运城买房要注意什么?